Насос камерный пневматический ТА-23Б
Насос камерный пневматический ТА-23Б предназначен для:
- Транспортирования цемента по трубопроводам при помощи сжатого воздуха на предприятиях цементной промышленности и строительной индустрии.
Насос работает в автономном режиме, надежен в эксплуатации, долговечен при ремонте с абразивными материалам, удобен в обслуживании, компактен, безопасен при ремонте

Насос камерный пневматический ТА-23Б
Технические характеристики
|
Производительность при выгрузке цемента из камеры, т/ч, не менее
|
20,5 ... 41
|
|
Длина транспортного цементопровода, м, не более (приведенная)
|
410 ... 230
|
|
Длина транспортного цементопровода, м, не более (в том числе по вертикали)
|
35
|
|
Объемный расход воздуха, м.куб/мин
|
15 - 22
|
|
Внутренний диаметр транспортного цементопровода, мм
|
150
|
|
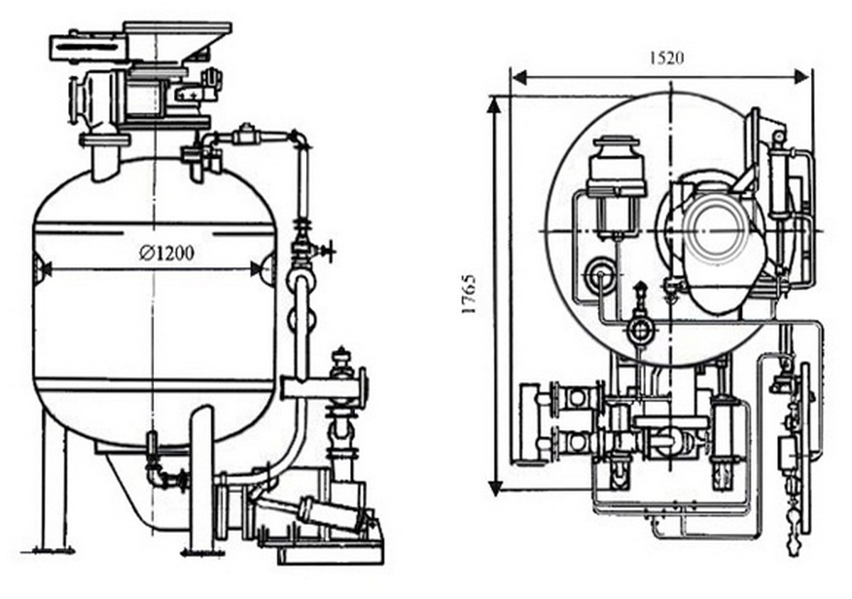
Габаритные размеры, мм (длина x ширина x высота)
|
1 765 x 1 520 x 2 547
|
|
Вместимость, м.куб
|
1,5
|
|
Система управления
|
автоматическая
|
|
Тип выгрузки
|
нижняя
|
|
Рабочее давление сжатого воздуха, МПа
|
0,6
|
|
Давление сжатого воздуха сети пневмоуправления, МПа (кГс/см.ку)
|
0,4 (4)
|
Чертеж насоса камерного пневматического ТА-23Б

Нажмите на чертеж для просмотра.

